ワイヤー式振れ止め

アルティマ ワイヤーロック (振れ止めワイヤーシステム)

アルティマ ターンバックルは、2022年2月18日より、アルティマ ワイヤーロック(振れ止めワイヤーシステム)に統合致します。


 

 部材構成パターン

 

アルティマ ワイヤーロック(振れ止めワイヤーシステム)の購入形態はグリップ単品、グリップ+ワイヤーの組み合わせとなります。

ワイヤーは10m巻(現場カット用)、カットワイヤー(1m、2m)からご選択下さい。

 

施工の際は吊り金具、サポート材などの強度も考慮してください。

 

 

① 許容荷重:170kg以内(φ3.0)を使用したい

 

↓ はい ↓ いいえ
 

 

② 許容荷重:55kg以内(φ1.5)を使用したい

 

↓ はい

 

② グリップ単品(φ3.0)を使用したい

 

③ グリップ単品(φ1.5)を使用したい
↓ はい ↓ いいえ ↓ はい ↓ いいえ
 

 

③ グリップ+ワイヤー(φ3.0)を使用したい

 

  ④ グリップ+ワイヤー(φ1.5)を使用したい

↓ はい

 

↓ はい

 

単品_φ3.0

ULG-3012

φ3.0

ULG-3012+

ワイヤー(両側溶断)

φ3.0

ULG-3012+

ワイヤー(片側端子)

単品_φ1.5

ULG-1509

φ1.5

ULG-1509+

ワイヤー(両側溶断)

φ1.5

ULG-1509+

ワイヤー(片側端子)

単品販売

  • グリップ(希望数量)+10m(現場カット用)
  • グリップ(2組)+1m
  • グリップ(2組)+2m
  • グリップ、受け金具(各1組)+1m
  • グリップ、受け金具(各1組)+2m

単品販売

  • グリップ(希望数量)+10m(現場カット用)
  • グリップ(2組)+1m
  • グリップ(2組)+2m
  • グリップ、受け金具(各1組)+1m
  • グリップ、受け金具(各1組)+2m
           

 

詳細はこちら

 

詳細はこちら 詳細はこちら 詳細はこちら 詳細はこちら 詳細はこちら 

 

 部材構成パターンφ3.0

 

 ストライプ A: ~H5,00 

 

単品φ3.0 ULG-3012

φ3.0 ULG-3012+ワイヤー(両側溶断) 

 

  • 許容荷重:170kg (ULG-3012)
  • 単体販売_ULG-3012 (ナット込)
  • ULG-3012 (ナット込)×希望数量、両側溶断ワイヤー L=10m (現場カット用)
  • ULG-3012 (ナット込)×2組、両側溶断ワイヤー L=1m
  • ULG-3012 (ナット込)×2組、両側溶断ワイヤー L=2m
  

 

PDF

 

設置手順書 (PDF)


 ストライプ A: ~H5,00 

 

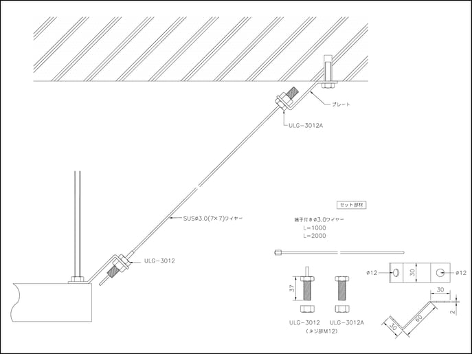
φ3.0 ULG-3012(A)+ワイヤー(片側端子) 

 
  • 許容荷重:170kg (ULG-3012A)
  • ULG-3012 (ナット込)×1組、ULG-3012 A (ナット込)×1組、片側端子ワイヤー L=1m
  • ULG-3012 (ナット込)×1組、ULG-3012 A (ナット込)×1組、片側端子ワイヤー L=2m
  

 

PDF

 

設置手順書 (PDF)


 

 部材構成パターンφ1.5 

 

 ストライプ A: ~H5,00 

 

単品φ1.5 ULG-1509

φ1.5 ULG-1509+ワイヤー(両側溶断)

 

  • 許容荷重:60kg (ULG-1509) 
  • 単体販売_ULG-1509 (ナット込)
  • ULG-1509 (ナット込)×希望数量、両側溶断ワイヤー L=10m (現場カット用)
  • ULG-1509 (ナット込)×2組、両側溶断ワイヤー L=1m
  • ULG-1509 (ナット込)×2組、両側溶断ワイヤー L=2m
  

 

PDF

 

設置手順書 (PDF)


 ストライプ A: ~H5,00 

 

φ1.5 ULG-1509(A)+ワイヤー(片側端子)

 

  • 許容荷重:60kg (ULG-1509A)
  • ULG-1509 (ナット込)×1組、ULG-1509 A (ナット込)×1組、片側端子ワイヤー L=1m
  • ULG-1509 (ナット込)×1組、ULG-1509 A (ナット込)×1組、片側端子ワイヤー L=2m
  

 

PDF

 

設置手順書 (PDF)