ワイヤー式壁面緑化工法 アルティマ壁面緑化システム (PAT.P)


 

 ④ 納まり支持材をLアングルでなく、アルミ製緑化レールをお勧めする理由

 

まず初めに、各納まり支持材の概算設計価格でのコスト比較になります。

 

Lアングル等に比べ、アルミ製緑化レール仕様がトータルコストで一番安価になります。

アルミ製緑化レールを推奨する理由は、コストだけではありません。景観性、施工性も含めてワイヤー式壁面緑化に最適な支持材だからです。

 

 

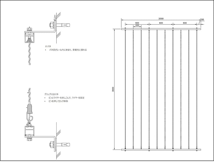
寸法例:W2,000mm×H3,000mm (ワイヤーピッチ@200mm)

ワイヤー張り:ストライプ (縦のみ)、パターン① (ワイヤーセット)

 

概算設計価格 (税抜)
Lアングル
  • 被膜φ6 スパイラルワイヤーセット L=3,200×10本
  • Lアングル(SUS)×4m
  • 高ナット×8本
172,000円
アルミ製緑化レール
  • 緑化レール用 被膜φ6 スパイラルワイヤーセット L=3,200×10本
  • アルミ製緑化レール L=2,000×2本
  • L型ブラケット(壁付け用)×8組
  • アイランナー×10個
88,000円
アイボルト付き支柱
  • 被膜φ6 スパイラルワイヤーセット L=3,200×11本
  • アイボルト付き支柱×22本
120,000円
ボルト支柱
  • 被膜φ6 スパイラルワイヤーセット L=3,200×11本
  • ボルト支柱×22本
129,000円
  • アンカーボルト及び取付工事費用、植栽費用、メンテナンス費用は含まれておりません

 

左:従来仕様 Lアングルの場合

 

右:アルミ製緑化レールの場合
  • 自重がある。重い
  • 職人が左右に二手に分かれる
  • 事前にワイヤー穴あけ必須、途中変更が出来ない
  • Lアングルに比べ、自重約1/3
  • 2mレールでの取付は、職人1人でも可能
  • 事前にレールへの穴あけ不要
  • 部材コストが安価
  • 工期短縮に繋がる

 

 高さによる納まり標準 【アルミ製緑化レール】

 

 

左図:高さ 約4,000まで

 

右図:高さ 約4,000 ~ 約8,000まで 

被膜φ6スパイラルワイヤーセット × 1本

※ 振れ止めなしで取付可能

 被膜φ6スパイラルワイヤーセット × 1本

+ 中間振れ止め用 支柱+α (推奨)

※ 安全の為、4m以上はワイヤー振れ止めとして、中間部にボルト支柱+ワイヤーセット設置を推奨します。


 

 設置手順例:アルミ製緑化レール × ストライプ仕様