ワイヤー式壁面緑化工法 アルティマ壁面緑化システム (PAT.P)


 

 高さによる納まり標準構成_アルミ製緑化レール

 

 ワイヤーセット1本辺りの荷重値は上端、下端各緑化レールに5kg~10kg程度になります。

 2種類の部材構成 (パターン①_スパイラルワイヤーセット、パターン②_ワイヤーロール+グリップ内蔵バネフック)

 

 

 

高さ 約4,000まで

 

パターン①

  • 被膜φ6スパイラルワイヤーセット ×1本

  • ※ 振れ止めなしで取付可能

パターン②

  • 被膜φ6スパイラルワイヤーロール

  •  

    グリップ内蔵バネフック×2個

  • ※ 振れ止めなしで取付可能
 

 

高さ 約4,000 ~ 約8,000まで

 

パターン①

  • 被膜φ6スパイラルワイヤーセット ×1本
  • 中間振れ止め用 支柱+α (推奨)

パターン②

  • 被膜φ6スパイラルワイヤーロール
  • グリップ内蔵バネフック×2個
  • 中間振れ止め用 支柱+α (推奨)

 

 納まり支持材_アルミ製緑化レール

 

 

① ワイヤーは縦のみ(ストライプ)に張りたい

 

↓ はい ↓ いいえ

 

② 高さ8m以上である

 

② ワイヤーは縦横(チェッククロス)に張りたい
↓ はい ↓ いいえ ↓ はい ↓ いいえ 斜め(ダイヤクロス)に張りたい
 

 

③ 高さ4m以上8m以下である

 

③ 設置箇所は壁付ではなく、天井付  

 

↓ はい

 

↓ いいえ 高さ4m以下 ↓ はい ↓ いいえ 壁付
 

 

④ 設置箇所は壁付ではなく、天井付

 

④ 設置箇所は開口部である (アンカーが打てない) ④ 設置箇所は開口部である (アンカーが打てない)
↓ はい ↓ いいえ ↓ はい ↓ いいえ ↓ はい ↓ いいえ

 

詳細はこちら

 

詳細はこちら 詳細はこちら 詳細はこちら 詳細はこちら 詳細はこちら 詳細はこちら 詳細はこちら  詳細はこちら
                 
D C B A E-2 F E-1 F G

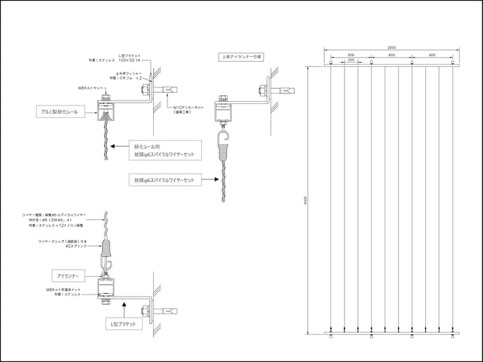
 ストライプ A:~H4,000

 

 ストライプ A:~H4,000 (壁付)

 

※ 中間振れ止め不要

 

 

寸法例:W2,000mm×H3,000mm (ワイヤーピッチ@200mm)

 

概算設計価格 (税抜)
パターン①
  • 緑化レール用 被膜φ6 スパイラルワイヤーセット L=3,200×10本
  • アルミ製緑化レール L=2,000×2本
  • L型ブラケット(壁付け用)×8組
  • アイランナー×10個
88,000円
パターン②
  • スパイラルワイヤーロール100m×1巻
  • グリップ内蔵バネフック×20個
  • アルミ製緑化レール L=2,000×2本
  • L型ブラケット(壁付け用)×8組
  • アイランナー×20個
173,000円 
  • アンカーボルト及び取付工事費用、植栽費用、メンテナンス費用は含まれておりません
  • L型ブラケットの取付ピッチは@600を基準とします
  • 縦方向のみで構成するワイヤーピッチは自由に設計出来ます
  • ワイヤーピッチは@200~300を基準とします。植栽の種類などに合わせて、ピッチをご検討下さい。 
 

 

DXF

 


 ストライプ B:~H4,000 (天井付け)

 

 ストライプ B:~H4,000 (天井付)

 

※ 中間振れ止め不要

※ 納まり:天井付け

 

 

寸法例:W2,000mm×H3,000mm (ワイヤーピッチ@200mm)

 

概算設計価格 (税抜)
パターン①
  • 緑化レール用 被膜φ6 スパイラルワイヤーセット L=3,200×10本
  • アルミ製緑化レール L=2,000×2本
  • コの字型ブラケット(天井付け用)×8組
  • アイランナー×10個
88,000円
パターン②
  • スパイラルワイヤーロール100m×1巻
  • グリップ内蔵バネフック×20個
  • アルミ製緑化レール L=2,000×2本
  • コの字型ブラケット(天井付け用)×8組
  • アイランナー×10個
173,000円
  • アンカーボルト及び取付工事費用、植栽費用、メンテナンス費用は含まれておりません
  • コの字型ブラケットの取付ピッチは@600を基準とします
  • 縦方向のみで構成するワイヤーピッチは自由に設計出来ます
  • ワイヤーピッチは@200~300を基準とします。植栽の種類などに合わせて、ピッチをご検討下さい。 
 

 

DXF

 


 ストライプ C: H4,000~H8,000

 

 ストライプ C: H4,000~H8,000 (壁付)

 

※ 推奨 中間振れ止め:ボルト支柱+被膜φ6 スパイラルワイヤーセット

 

 

寸法例:W4,000mm×H6,000mm (ワイヤーピッチ@200mm)

 

概算設計価格 (税抜)
パターン①
  • 被膜φ6 スパイラルワイヤーセット L=6,200×20本
  • アルミ製緑化レール L=2,000×4本
  • レールジョイントプレート×2組
  • L型ブラケット(壁付け用)×16組
  • アイランナー×40個
  • 振れ止め用 被膜φ6 スパイラルワイヤーセット L=4,200×1本
  • 振れ止め用 ボルト支柱×2本
248,000円
パターン②
  • スパイラルワイヤーロール100m×2巻
  • グリップ内蔵バネフック×42個
  • アルミ製緑化レール L=2,000×4本
  • レールジョイントプレート×2組
  • L型ブラケット(壁付け用)×16組
  • アイランナー×40個
  • 振れ止め用 ボルト支柱×2本
361,000円
  • アンカーボルト及び取付工事費用、植栽費用、メンテナンス費用は含まれておりません
  • L型ブラケットの取付ピッチは@600を基準とします
  • ワイヤーピッチは@200~300を基準とします。植栽の種類などに合わせて、ピッチをご検討下さい。 
  • 中間振れ止め:アイボルト付き支柱も可能
 

 

DXF

 


 ストライプ D: H8,000~

 

 ストライプ D: H8,000~ (壁付)

 

※ スパイラルワイヤーセット連結構成

※ 推奨 中間振れ止め:ボルト支柱+被膜φ6 スパイラルワイヤーセット

 

 

寸法例:W4,000mm×H15,000mm (ワイヤーピッチ@200mm)

 

概算設計価格 (税抜)
パターン①
  • 被膜φ6 スパイラルワイヤーセット L=7,700×40本
  • アルミ製緑化レール L=2,000×6本
  • レールジョイントプレート×3組
  • L型ブラケット(壁付け用)×24組
  • アイランナー×80個
  • 振れ止め用 被膜φ6 スパイラルワイヤーセット L=4,200×2本
  • 振れ止め用 ボルト支柱×4本
492,000円
パターン②
  • スパイラルワイヤーロール100m×4巻
  • グリップ内蔵バネフック×84個
  • アルミ製緑化レール L=2,000×6本
  • レールジョイントプレート×3組
  • L型ブラケット(壁付け用)×24組
  • アイランナー×80個
  • 振れ止め用 ボルト支柱×4本
687,000円
  • アンカーボルト及び取付工事費用、植栽費用、メンテナンス費用は含まれておりません
  • L型ブラケットの取付ピッチは@600を基準とします
  • ワイヤーピッチは@200~300を基準とします。植栽の種類などに合わせて、ピッチをご検討下さい。 
  • 中間振れ止め:アイボルト付き支柱も可能
 

 

DXF

 


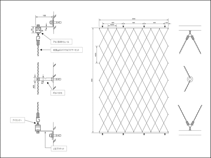
 チェッククロス E: ~H4,000 (開口部)

 

 チェッククロス E-1: ~H4,000 (壁付、開口部)

 

※ 上端下端以外にM10アンカーボルト等が打てない躯体:開口部での仕様になります

 

 

寸法例:W2,000mm×H3,000mm (ワイヤーピッチ@200mm×600mm)

 

概算設計価格 (税抜)
パターン①
  • 被膜φ6 スパイラルワイヤーセット L=3,200×10本
  • アルミ製緑化レール L=2,000×2本
  • L型ブラケット(壁付け用)×8組
  • アイランナー×20個
  • φ3 ロット棒 L=2,000×4本
  • 連結金具 グリーンガイド×24個
129,000円
パターン②
  • スパイラルワイヤーロール100m×1巻
  • グリップ内蔵バネフック×20個
  • アルミ製緑化レール L=2,000×2本
  • L型ブラケット(壁付け用)×8組
  • アイランナー×20個
  • φ3 ロット棒 L=2,000×4本
  • 連結金具 グリーンガイド×24個
210,000円
  • アンカーボルト及び取付工事費用、植栽費用、メンテナンス費用は含まれておりません
  • L型ブラケットの取付ピッチは@600を基準とします
  • 縦と横を構成するワイヤーピッチは自由に計画出来ます
  • 通常は、縦@200~300×横@400~600を基準とします。植栽の種類などに合わせて、ピッチをご検討下さい。
  • 連結金具:グリーンガイドはワイヤーピッチ@200までは、縦ワイヤー1本飛ばしで設置、ワイヤーピッチ@200以上は、縦ワイヤー1本に付き、1本設置
 

 

DXF

 


 チェッククロス F:~H4,000

 

 チェッククロス E-2:~H4,000 (天井付、開口部)

 

※ 上端下端以外にM10アンカーボルト等が打てない躯体:開口部での仕様になります

 

 

寸法例:W2,000mm×H3,000mm (ワイヤーピッチ@200mm×600mm)

 

概算設計価格 (税抜)
パターン①
  • 被膜φ6 スパイラルワイヤーセット L=3,200×10本
  • アルミ製緑化レール L=2,000×2本
  • コの字型ブラケット(天井付け用)×8組
  • アイランナー×20個
  • φ3 ロット棒 L=2,000×4本
  • 連結金具 グリーンガイド×24個
129,000円
パターン②
  • スパイラルワイヤーロール100m×1巻
  • グリップ内蔵バネフック×20個
  • アルミ製緑化レール L=2,000×2本
  • コの字型ブラケット(天井付け用)×8組
  • アイランナー×20個
  • φ3 ロット棒 L=2,000×4本
  • 連結金具 グリーンガイド×24個
210,000円
  • アンカーボルト及び取付工事費用、植栽費用、メンテナンス費用は含まれておりません
  • コの字型ブラケットの取付ピッチは@600を基準とします
  • 縦と横を構成するワイヤーピッチは自由に計画出来ます
  • 通常は、縦@200~300×横@400~600を基準とします。植栽の種類などに合わせて、ピッチをご検討下さい。
  • 連結金具:グリーンガイドはワイヤーピッチ@200までは、縦ワイヤー1本飛ばしで設置、ワイヤーピッチ@200以上は、縦ワイヤー1本に付き、1本設置
 

 

DXF

 


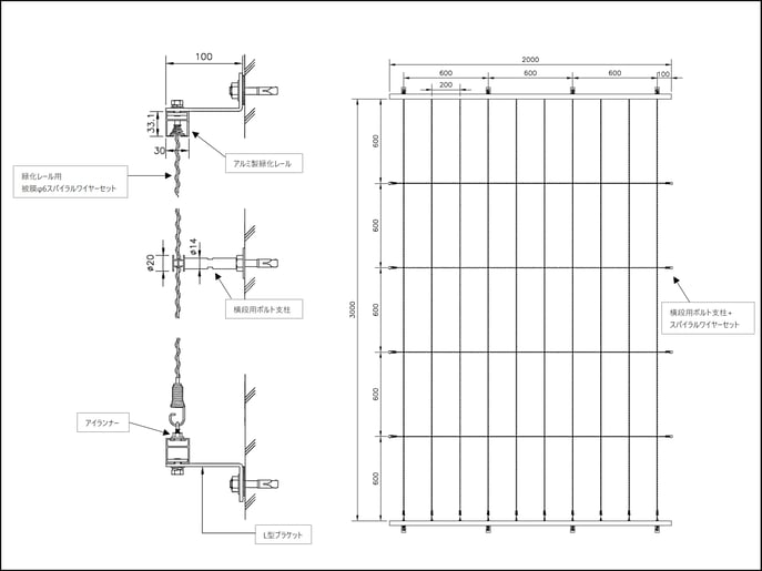
 チェッククロス F:~H4,000

 

 チェッククロス F:壁付

 

※ M10アンカーボルト等が打てる壁面に設置

※ H4,000以上も可能

 

 

寸法例:W2,000mm×H3,000mm (ワイヤーピッチ@200mm×600mm)

 

概算設計価格 (税抜)
パターン①
  • 緑化レール用 被膜φ6 スパイラルワイヤーセット L=3,200×10本
  • アルミ製緑化レール L=2,000×2本
  • L型ブラケット(壁付け用)×8組
  • アイランナー×10個
  • 横段用 被膜φ6 スパイラルワイヤーセット L=2,200×4本
  • 横段用 ボルト支柱×8本
132,000円
パターン②
  • スパイラルワイヤーロール100m×1巻
  • グリップ内蔵バネフック×28個
  • アルミ製緑化レール L=2,000×2本
  • L型ブラケット(壁付け用)×8組
  • アイランナー×20個
  • 横段用 ボルト支柱×8本
214,000円
  • アンカーボルト及び取付工事費用、植栽費用、メンテナンス費用は含まれておりません
  • L型ブラケットの取付ピッチは@600を基準とします
  • 縦と横を構成するワイヤーピッチは自由に計画出来ます
  • 通常は、縦@200~300×横@400~600を基準とします。植栽の種類などに合わせて、ピッチをご検討下さい。
  • 横段:アイボルト付き支柱でも可
 

 

DXF

 


 ダイヤクロス G:~H4,000

 

 ダイヤクロス G:壁付

 

※ H4,000以上も可能

 

 

寸法例:W2,000mm×H3,000mm (ワイヤーピッチ@200mm×250mm×500mm)

 

概算設計価格 (税抜)
パターン①
  • 被膜φ6 スパイラルワイヤーセット L=7,200×7本
  • 被膜φ6 スパイラルワイヤーセット L=3,700×2本
  • アルミ製緑化レール L=2,000×2本
  • L型ブラケット(壁付け用)×8組
  • アイランナー×18個
  • ボルト支柱×10本
141,000円
パターン②
  • スパイラルワイヤーロール100m×1巻
  • グリップ内蔵バネフック×18個
  • アルミ製緑化レール L=2,000×2本
  • L型ブラケット(壁付け用)×8組
  • アイランナー×18個
  • ボルト支柱×10本
202,000円
  • アンカーボルト及び取付工事費用、植栽費用、メンテナンス費用は含まれておりません
  • L型ブラケットの取付ピッチは@600を基準とします
  • 縦と横を構成するワイヤーピッチは自由に計画出来ます
  • 植栽の種類などに合わせて、ピッチをご検討下さい。
  • 横段:アイボルト付き支柱でも可
 

 

DXF