ワイヤー式壁面緑化工法 アルティマ壁面緑化システム (PAT.P)


 

 ワイヤー・プランター一体型壁面緑化

 

  • 高さはH4,000~H5,000までとなります。
  • ワイヤー張りパターンは、ストライプ(縦のみ)、チェッククロス(縦横)となります。
  • FRPプランター仕様:株式会社 トーシンコーポレーション製FRPプランター専用構成となります。
  • FRPプランター仕様:ワイヤーセット1本辺りの荷重値は上端緑化レール、下端グリーンカーテンフックに5kg~10kg程度になります。
  • じゃかご(蛇篭)プランター仕様:ワイヤーセット1本辺りの荷重値は上端Lアングル、アイボルト付き支柱、下端プランターに5kg~10kg程度になります。

 

 

① 植栽は地植えではなく、プランターを使用する

 

↓ はい ↓ いいえ 地植え

 

② FRPプランターを使用する

 

 
↓ はい ↓ いいえ じゃかごプランター   

 

③ ワイヤーは縦のみ(ストライプ)に張りたい

 

   

↓ はい

↓ いいえ    
 

 

④ ワイヤーは縦横(チェッククロス)に張りたい

 

   
↓ はい    
④ 設置箇所は壁付けではなく、天井付けである  

 

⑤ 設置箇所は壁付けではなく、天井付けである

 

   
↓ はい ↓ いいえ 壁付け

 ↓ はい

↓ いいえ 壁付け    
   

 

⑥ 上端下端以外は開口部である (アンカーが打てない)

 

⑥ 上端下端以外は開口部である (アンカーが打てない)    
↓ はい ↓ はい ↓ いいえ 壁付け    

 

詳細はこちら

 

詳細はこちら 詳細はこちら 詳細はこちら  詳細はこちら 詳細はこちら 詳細はこちら
             
レールB レールA レールE-2 レールE-1 レールF    

 ストライプ A:~H4,000

 

③ ワイヤー納まり支持材:Lアングルを使用したい

 

↓ はい ↓ いいえ
 

 

④ ワイヤー納まり支持材:アイボルト付き支柱を使用したい

 

↓ はい

 

④ ワイヤーは縦のみ(ストライプ)に張りたい

 

⑤ ワイヤーは縦のみ(ストライプ)に張りたい
↓ はい ↓ いいえ ↓ はい  ↓ いいえ
 

 

⑤ ワイヤーは縦横(チェッククロス)に張りたい

 

  ⑥ ワイヤーは縦横(チェッククロス)に張りたい
↓ はい ↓ はい

 

⑥ 上端下端以外は開口部である (アンカーが打てない)

 

⑦ 上端下端以外は開口部である (アンカーが打てない)
↓ はい ↓ いいえ 壁付け ↓ はい  ↓ いいえ 壁付け

 

詳細はこちら

 

詳細はこちら 詳細はこちら 詳細はこちら  詳細はこちら 詳細はこちら
           
アングルA アングルE-1 アングルF アイボルトA  アイボルトD アイボルトE-1

 ストライプ A:~H4,000

 

 レール_ストライプ A:~H4,000 (壁付)

 

※ 中間振れ止め不要

 

 

寸法例:W2,000mm×H3,000mm (ワイヤーピッチ@200mm)

 

概算設計価格 (税抜)
パターン①
  • 被膜φ6 スパイラルワイヤーセット L=3,200×10本
  • アルミ製緑化レール L=2,000×1本
  • L型ブラケット(壁付け用)×4組
  • アイランナー×10個
  • グリーンカーテンフック×10個
82,000円
  • 上端アンカーボルト及び取付工事費用、FRPプランター、植栽費用、メンテナンス費用は含まれておりません
  • L型ブラケットの取付ピッチは@600を基準とします
  • 縦方向のみで構成するワイヤーピッチは自由に設計出来ます
  • ワイヤーピッチは@200~300を基準とします。植栽の種類などに合わせて、ピッチをご検討下さい。 
 

 

DXF

 


 ストライプ B:~H4,000 (天井付け)

 

 レール_ストライプ B:~H4,000 (天井付)

 

※ 中間振れ止め不要

※ 納まり:天井付け

 

 

寸法例:W2,000mm×H3,000mm (ワイヤーピッチ@200mm)

 

概算設計価格 (税抜)
パターン①
  • 被膜φ6 スパイラルワイヤーセット L=3,200×10本
  • アルミ製緑化レール L=2,000×1本
  • コの字型ブラケット(天井付け用)×4組
  • アイランナー×10個
  • グリーンカーテンフック×10個
82,000円
  • 上端アンカーボルト及び取付工事費用、FRPプランター、植栽費用、メンテナンス費用は含まれておりません
  • コの字型ブラケットの取付ピッチは@600を基準とします
  • 縦方向のみで構成するワイヤーピッチは自由に設計出来ます
  • ワイヤーピッチは@200~300を基準とします。植栽の種類などに合わせて、ピッチをご検討下さい。 
 

 

DXF

 


 チェッククロス E: ~H4,000 (開口部)

 

 レール_チェッククロス E-1: ~H4,000 (壁付、開口部)

 

※ 上端以外にM10アンカーボルト等が打てない躯体:開口部での仕様になります

 

 

寸法例:W2,000mm×H3,000mm (ワイヤーピッチ@200mm×600mm)

 

概算設計価格 (税抜)
パターン①
  • 被膜φ6 スパイラルワイヤーセット L=3,200×10本
  • アルミ製緑化レール L=2,000×1本
  • L型ブラケット(壁付け用)×4組
  • アイランナー×10個
  • グリーンカーテンフック×10個
  • φ3 ロット棒 L=2,000×4本
  • 連結金具 グリーンガイド×24個
125,000円
  • 上端アンカーボルト及び取付工事費用、FRPプランター、植栽費用、メンテナンス費用は含まれておりません
  • L型ブラケットの取付ピッチは@600を基準とします
  • 縦と横を構成するワイヤーピッチは自由に計画出来ます
  • 通常は、縦@200~300×横@400~600を基準とします。植栽の種類などに合わせて、ピッチをご検討下さい。
  • 連結金具:グリーンガイドはワイヤーピッチ@200までは、縦ワイヤー1本飛ばしで設置、ワイヤーピッチ@200以上は、縦ワイヤー1本に付き、1本設置
 

 

DXF

 


 チェッククロス F:~H4,000

 

 レール_チェッククロス E-2:~H4,000 (天井付、開口部)

 

※ 上端以外にM10アンカーボルト等が打てない躯体:開口部での仕様になります

 

 

寸法例:W2,000mm×H3,000mm (ワイヤーピッチ@200mm×600mm)

 

概算設計価格 (税抜)
パターン①
  • 被膜φ6 スパイラルワイヤーセット L=3,200×10本
  • アルミ製緑化レール L=2,000×1本
  • コの字型ブラケット(天井付け用)×4組
  • アイランナー×10個
  • グリーンカーテンフック×10個
  • φ3 ロット棒 L=2,000×4本
  • 連結金具 グリーンガイド×24個
125,000円
  • 上端アンカーボルト及び取付工事費用、FRPプランター、植栽費用、メンテナンス費用は含まれておりません
  • コの字型ブラケットの取付ピッチは@600を基準とします
  • 縦と横を構成するワイヤーピッチは自由に計画出来ます
  • 通常は、縦@200~300×横@400~600を基準とします。植栽の種類などに合わせて、ピッチをご検討下さい。
  • 連結金具:グリーンガイドはワイヤーピッチ@200までは、縦ワイヤー1本飛ばしで設置、ワイヤーピッチ@200以上は、縦ワイヤー1本に付き、1本設置
 

 

DXF

 


 チェッククロス F:~H4,000

 

 レール_チェッククロス F:壁付

 

※ M10アンカーボルト等が打てる壁面に設置

 

 

寸法例:W2,000mm×H3,000mm (ワイヤーピッチ@200mm×600mm)

 

概算設計価格 (税抜)
パターン①
  • 被膜φ6 スパイラルワイヤーセット L=3,200×10本
  • アルミ製緑化レール L=2,000×1本
  • L型ブラケット(壁付け用)×4組
  • アイランナー×10個
  • グリーンカーテンフック×10個
  • 横段用 被膜φ6 スパイラルワイヤーセット L=2,200×4本
  • 横段用 ボルト支柱×8本
132,000円
  • 上端アンカーボルト及び取付工事費用、FRPプランター、植栽費用、メンテナンス費用は含まれておりません
  • L型ブラケットの取付ピッチは@600を基準とします
  • 縦と横を構成するワイヤーピッチは自由に計画出来ます
  • 通常は、縦@200~300×横@400~600を基準とします。植栽の種類などに合わせて、ピッチをご検討下さい。
  • 横段:アイボルト付き支柱でも可
 

 

DXF

 


 チェッククロス F:~H4,000

 

 アングル_ストライプ A:~H5,000 (壁付)

 

※ 中間振れ止め不要

 

 

寸法例:W2,000mm×H3,000mm (ワイヤーピッチ@200mm)

 

概算設計価格 (税抜)
パターン①
  • 被膜φ6 スパイラルワイヤーセット L=3,200×10本
  • Lアングル(SUS)×2m
  • 高ナット×4本
111,000円
  • 上端アンカーボルト及び取付工事費用、じゃかごプランター、植栽費用、メンテナンス費用は含まれておりません
  • Lアングルを固定する支柱取付ピッチは@600を基準とします
  • 構成するワイヤーピッチは自由に計画出来ます
  • 通常はワイヤーピッチ@200~300を基準とします。植栽の種類などに合わせて、ピッチをご検討下さい。
  • アングル穴あけ寸法 φ12~14
  • アングル穴あけ寸法指定あり
 

 

DXF

 


 チェッククロス F:~H4,000

 

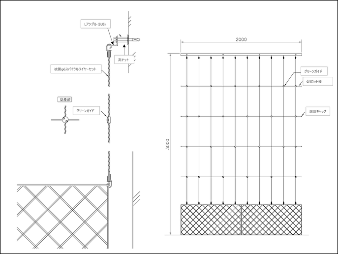
 アングル_チェッククロス E-1: ~H5,000 (壁付、開口部)

 

※ 上端以外にM10アンカーボルト等が打てない躯体:開口部での仕様になります

 

 

寸法例:W2,000mm×H3,000mm (ワイヤーピッチ@200mm×600mm)

 

概算設計価格 (税抜)
パターン①
  • 被膜φ6 スパイラルワイヤーセット L=3,200×10本
  • Lアングル(SUS)×2m
  • 高ナット×4本
  • φ3 ロット棒 L=2,000×4本
  • 連結金具 グリーンガイド×24個
147,000円
  • 上端アンカーボルト及び取付工事費用、じゃかごプランター、植栽費用、メンテナンス費用は含まれておりません
  • Lアングルを固定する支柱取付ピッチは@600を基準とします
  • 縦と横を構成するワイヤーピッチは自由に計画出来ます
  • 通常は、縦@200~300×横@400~600を基準とします。植栽の種類などに合わせて、ピッチをご検討下さい。
  • 連結金具:グリーンガイドはワイヤーピッチ@200までは、縦ワイヤー1本飛ばしで設置、ワイヤーピッチ@200以上は、縦ワイヤー1本に付き、1本設置
 

 

DXF

 


 チェッククロス F:~H4,000

 

 アングル_チェッククロス F:壁付

 

※ M10アンカーボルト等が打てる壁面に設置

 

 

寸法例:W2,000mm×H3,000mm (ワイヤーピッチ@200mm×600mm)

 

概算設計価格 (税抜)
パターン①
  • 被膜φ6 スパイラルワイヤーセット L=3,200×10本
  • Lアングル(SUS)×2m
  • 高ナット×4本
  • 横段用 被膜φ6 スパイラルワイヤーセット L=2,200×4本
  • 横段用 アイボルト付き支柱×8本
152,000円
  • 上端アンカーボルト及び取付工事費用、じゃかごプランター、植栽費用、メンテナンス費用は含まれておりません
  • Lアングルを固定する支柱取付ピッチは@600を基準とします
  • 縦と横を構成するワイヤーピッチは自由に計画出来ます
  • 通常は、縦@200~300×横@400~600を基準とします。植栽の種類などに合わせて、ピッチをご検討下さい。
  • 横段:ボルト支柱でも可
 

 

DXF

 


 チェッククロス F:~H4,000

 

 アイボルト付き支柱_ストライプ A:~H5,000 (壁付)

 

※ 中間振れ止め不要

 

 

寸法例:W2,000mm×H3,000mm (ワイヤーピッチ@200mm)

 

概算設計価格 (税抜)
パターン①
  • 被膜φ6 スパイラルワイヤーセット L=3,200×10本
  • アイボルト付き支柱×10本
87,000円
  • 上端アンカーボルト及び取付工事費用、じゃかごプランター、植栽費用、メンテナンス費用は含まれておりません
  • 通常はワイヤーピッチ@200~300を基準とします。植栽の種類などに合わせて、ピッチをご検討下さい。
 

 

DXF

 


 チェッククロス F:~H4,000

 

 アイボルト付き支柱_チェッククロス D: ~H5,000 (壁付、開口部)

 

※ 上端以外にM10アンカーボルト等が打てない躯体:開口部での仕様になります

 

 

寸法例:W2,000mm×H3,000mm (ワイヤーピッチ@200mm×600mm)

 

概算設計価格 (税抜)
パターン①
  • 被膜φ6 スパイラルワイヤーセット L=3,200×10本
  • アイボルト付き支柱×10本
  • φ3 ロット棒 L=2,000×4本
  • 連結金具 グリーンガイド×24個
124,000円
  • 上端アンカーボルト及び取付工事費用、じゃかごプランター、植栽費用、メンテナンス費用は含まれておりません
  • 通常は、縦@200~300×横@400~600を基準とします。植栽の種類などに合わせて、ピッチをご検討下さい。
  • 連結金具:グリーンガイドはワイヤーピッチ@200までは、縦ワイヤー1本飛ばしで設置、ワイヤーピッチ@200以上は、縦ワイヤー1本に付き、1本設置
 

 

DXF

 


 チェッククロス F:~H4,000

 

 アイボルト付き支柱_チェッククロス E:壁付

 

※ M10アンカーボルト等が打てる壁面に設置

 

 

寸法例:W2,000mm×H3,000mm (ワイヤーピッチ@200mm×600mm)

 

概算設計価格 (税抜)
パターン①
  • 被膜φ6 スパイラルワイヤーセット L=3,200×10本
  • アイボルト付き支柱×10本
  • 横段用 被膜φ6 スパイラルワイヤーセット L=2,200×4本
  • 横段用 アイボルト付き支柱×8本
152,000円
  • 上端アンカーボルト及び取付工事費用、じゃかごプランター、植栽費用、メンテナンス費用は含まれておりません
  • 通常は、縦@200~300×横@400~600を基準とします。植栽の種類などに合わせて、ピッチをご検討下さい。
  • 横段:ボルト支柱でも可
 

 

DXF