ワイヤー式壁面緑化工法 アルティマ壁面緑化システム (PAT.P)


 

 ⑤ ワイヤー・プランター一体型壁面緑化:FRPプランター専用  (株式会社 トーシンコーポレーション)

 

弊社壁面緑化システム部材は、プランター緑化のリーディングカンパニーであるトーシンコーポレーション様の仕様ニーズに合致した事から【TLC壁面ワイヤー】として、ご採用をいただいております。

 

TLC壁面ワイヤー専用部材として開発したFRP連結プランター専用 グリーンカーテンフック。グリーンカーテンフックを使用する事で、ワイヤー・プランター一体型壁面緑化を実現出来ました。

 

FRPプランターは特注製作対応が出来、機能性だけでなく、景観美も重要視しているので、弊社部材との親和性が高いプランターになります。

 

本システムの主な特長を4点、ご説明致します。

 

 


 

理由①_施工性

 

  • 下端ワイヤー取付部材がグリーンカーテンフックのみ、下端レール不要、アンカー打ちも不要
  • グリーンカーテンフックをFRPプランターにネジ止めするだけの簡単施工
  • スパイラルワイヤーセットはグリーンカーテンフック穴に取り付けるだけ

 

理由②_機能性

 

  • ワイヤー張りは、垂直張りでも、傾斜張りでも対応可能
  • グリーンカーテンフックの取付箇所は、FRPプランター外側でも内側でも取り付け可能
  • 躯体への取付は、壁面側でも天井側でも設置可能

 

左図

 

右図

ワイヤー張り:垂直張り

 

 

取付位置:プランター内側

ワイヤー張り:傾斜張り

 

 

取付位置:プランター外側

躯体への取付は、壁面側でも天井側でも可能


 

理由③_デザイン性

 

  • プランターに取り付けたグリーンカーテンフックにワイヤーを取り付けるだけ、よりスッキリとしたデザイン
  • プランターとワイヤーが一体化したような景観
  • ワイヤー張りはストライプ(縦のみ)、チェッククロス(縦横)が可能


 

理由④_コスト

 

  • ワイヤー取付部材がグリーンカーテンフックのみ、下端レール、下端ブラケット、下端アイランナー、アンカーボルト等不要

※ 同条件で比較した場合、通常仕様よりも、グリーンカーテンフック仕様の方が、約11%安価となります。且つ、下端アンカーボルトが不要となります

 



 

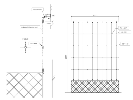
 ⑥ ワイヤー・プランター一体型壁面緑化:じゃかご(蛇篭)プランター仕様

 

ワイヤー・プランター一体型壁面緑化のラインアップの一つとして、スパイラルワイヤーセット(グリップ内蔵バネフック)をじゃかご(蛇篭)プランターに直接取り付ける事でワイヤー納まり支持材、アンカーボルト等の部材を少なくする事が出来ます。

納まり部材を少なくする事でコストメリット、かつ取付も極めて簡単な納まり仕様になります。

 

※ ワイヤーセット1本辺りの荷重値は上端支持材、下端プランターに5kg~10kg程度になりますので、ご注意下さい。

 


  • 納まり支持材:Lアングル
  • ワイヤー張り:ストライプ (縦のみ)
  • 納まり支持材:Lアングル
  • ワイヤー張り:チェッククロス (縦横)

  • 納まり支持材:アイボルト付き支柱
  • ワイヤー張り:ストライプ (縦のみ)
  • 納まり支持材:アイボルト付き支柱
  • ワイヤー張り:チェッククロス (縦横)