ワイヤー式振れ止め
アルティマ ワイヤーロック (振れ止めワイヤーシステム)
※ 多数のご要望からグリップ単体販売、グリップ+ワイヤー販売となりました
|
ストライプ A: ~H5,00 |
|
【まとめ】ワイヤー式振れ止め アルティマ ワイヤーロックについて
|
| 設置箇所 |
各種設備 (照明、看板、誘導灯、レースウェイ等)の吊りボルト等に振れ止めとして施工 |
| 他社製品との差別化 |
|
| 主な設置場所 |
|
| 主な納入先 | 某電設資材会社へ、照明・空調器具を取り付ける設備に使用するワイヤー振れ止め等の調整固定金具として、1990年から100万個以上の出荷実績(旧製品:WAG)がございます。 |
|
ダウンロード_基本仕様の内容 |
|
|
アルティマ製グリップは、一般的ワイヤー止め金具と何が違うのか?
|
アルティマ製グリップは某電設資材会社へ、照明・空調器具を取り付ける設備に使用するワイヤー振れ止め等の調整固定金具として、1990年から100万個以上の出荷実績(旧製品:WAG)がございます。
他社との差別化ポイントは何か?是非ご確認下さい。
|
何故、設計者はアルティマ ターンバックルを選ぶのか?
|
某設計さんの、「アルティマでもっと洗練されたターンバックル作れないの???」という一言から生まれたアルティマ ターンバックル。
従来ターンバックルと、アルティマ ターンバックルは何処が異なるのか。
設置作業が大幅に削減されるポイントなどを是非、ご確認下さい。
|
多数お問い合わせをいただいておりますワイヤー振れ止めについて
|
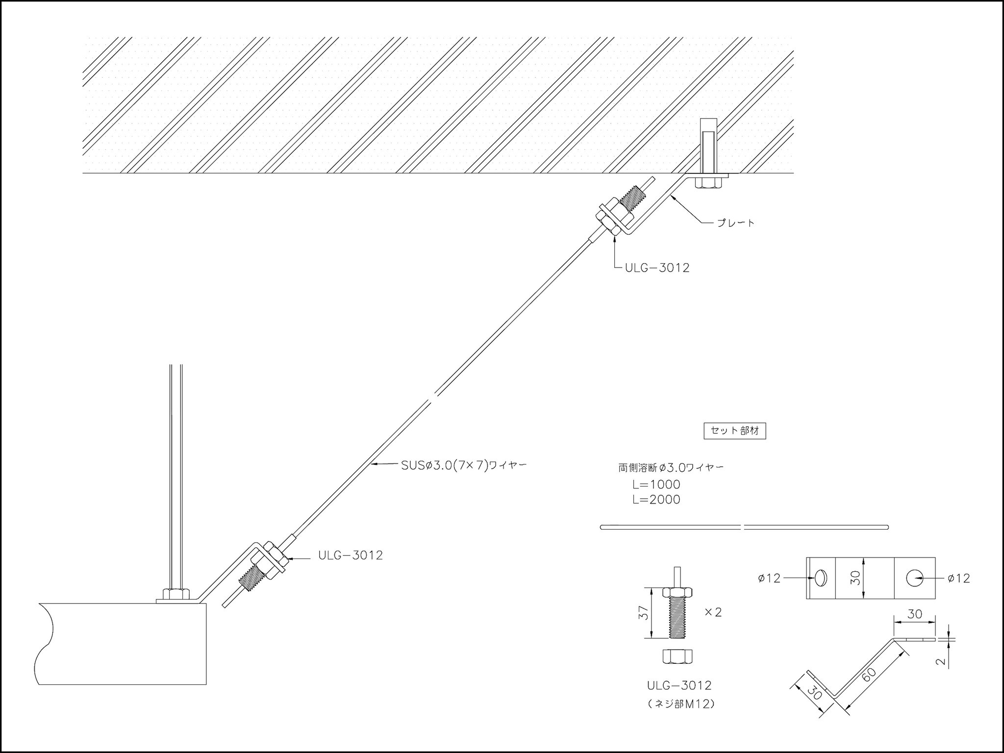
※ 旧製品のピン部分に「ULG」の刻印があるものが弊社商材になります
※ 線径φ3.0:ネジ仕様 M12、ナット共
※ 線径φ1.5:ネジ仕様W3/8 (三分)、ナット共
照明・空調器具を取り付ける設備に使用するワイヤー振れ止め等の調整固定金具として、特に某電設資材会社に出荷しておりました旧製品(WAG)廃盤に伴い、2022年2月より後継製品のULG-3012 (φ3.0用)、ULG-1509 (φ1.5用)に変更しております。
後継製品では、引き留めボルトやワイヤーもセット商材として販売しております。
|
部材構成パターン (振れ止めワイヤー_ワイヤーロック)
|
アルティマ ワイヤーロック(振れ止めワイヤー)の購入形態はグリップ単品、グリップ+ワイヤーの組み合わせとなります。
ワイヤーは10m巻(現場カット用)、カットワイヤー(1m、2m)からご選択下さい。
施工の際は吊り金具、サポート材などの強度も考慮してください。
|
① 許容荷重:170kg以内(φ3.0)を使用したい
|
|||||
| ↓ はい | ↓ いいえ | ||||
|
② 許容荷重:55kg以内(φ1.5)を使用したい
|
|||||
| ↓ はい | |||||
|
② グリップ単品(φ3.0)を使用したい
|
③ グリップ単品(φ1.5)を使用したい | ||||
| ↓ はい | ↓ いいえ | ↓ はい | ↓ いいえ | ||
|
③ グリップ+ワイヤー(φ3.0)を使用したい
|
④ グリップ+ワイヤー(φ1.5)を使用したい | ||||
| ↓ はい | ↓ はい | ||||
|
単品_φ3.0 ULG-3012 |
φ3.0 ULG-3012+ ワイヤー(両側溶断) |
φ3.0 ULG-3012+ ワイヤー(片側端子) |
単品_φ1.5 ULG-1509 |
φ1.5 ULG-1509+ ワイヤー(両側溶断) |
φ1.5 ULG-1509+ ワイヤー(片側端子) |
|
単品販売 |
|
|
単品販売 |
|
|
|
製品特徴
|
|
アルティマ ワイヤーロック (振れ止めワイヤーシステム)
|
| ワイヤー線径 | φ1.5、φ3.0 SUSワイヤー |
| 許容荷重 |
55kg 以内~170kg 以内 ※ワイヤーの線径により、許容荷重値は異なります ※許容荷重値は、最大静荷重値の約1/3の安全率でみています
|
| 主な用途例 | 設備の固定、振れ止めなど |
| 主な納入先 | 各電設資材企業、各照明設備企業 その他多数 |
|
アルティマ ターンバックル
|
| ワイヤー線径 |
φ3.0 SUSワイヤー |
| 許容荷重値 |
65kg以内~100kg以内 ※許容荷重値は、最大静荷重値の約1/3の安全率でみています。
|
| 主な用途例 |
公共施設等のサインの振れ止め、パーゴラへの応用 (集合住宅ファザード、商業ビル ファザード等) |
| 主な納入先 |
豊洲商業施設、豊洲集合住宅、夢の島熱帯植物園、駅構内、公共施設、商業施設、パーゴラ その他多数 |
|
|
|
| 特徴 |
|
|
よくあるご質問 (FAQ)
|
A 設備の振れ止めとしてワイヤーグリップを使用する場合、一般的なベアリング型グリップは荷重が不十分です。
対して、アルティマ製グリップは強度なグリップにより、より線径の細いワイヤーで、重量物を安全に吊る事が出来ます。
さらにグリップの特長として、グリップ先端のピンを操作する事でワイヤーの長さ調整が簡単に出来ます。
詳細は、こちらをご確認下さい。
A 仕様線径はφ1.5、φ3.0、ターンバックルはφ3.0に限定されます。
指定線径以外は、安全上ご使用にならないで下さい。
A グリップの許容荷重はφ1.5が55kg以内、φ3.0が170kg以内になります。
ターンバックルは端部形状フックのUTB-30BNはSUSワイヤーで65kg以内です。
端部形状アイのUTB-30CN、端部形状ストレートのUTB-30DNはSUSワイヤーで100kg以内です。
許容荷重値は最大静荷重値の約1/3の安全率で設定しております。
A ターンバックル側は溶断加工になります。
もう片方は、フック金具付、端子金具付、ループ加工、溶断加工の4種類よりご選択ください。
A 振れ止めの定尺寸法のご用意は、L=1,000、L=2,000、ターンバックルはの定尺寸法のご用意は、L=2,000、L=3,000になります。
これより長いロングスパンの場合は特注にて製作いたします。
納期、金額はお問合せ下さい。
A 振れ止めに関して、照明・空調器具を取り付ける設備に使用するワイヤー振れ止め等の調整固定金具として、某電設資材会社に1990年から100万個以上の出荷実績(旧製品:WAG)がございます。
現在のULGシリーズは旧製品(WAG)廃盤に伴い、2022年より後継製品として販売しております。
|
グリップ強度
|
最大静荷重値と許容苛重
※最大静荷重値は東京都産業技術研究所 及び当社社内テストによる
|
ワイヤー径
|
最大静荷重値 | 許容荷重 |
| φ1.5 | 1670N~1880N (170kg~192kg) | 540N (55kg以内) |
| φ3.0 | 5390N (500kg) | 1670N (170kg以内) |
※ 最大静荷重値とは、静止状態でグリップにステンレスワイヤー(7×7)を使用し、ワイヤーが破断するまで引っ張ったときの最大値(破断した時の値)です。
※ 許容荷重は最大静荷重値の約1/3の安全率でみていますが、使用条件によって安全率の考慮が必要です。
※ 最大静荷重値は使用するワイヤーの種類で異なります。ご不明な点は当社までお問合せください。