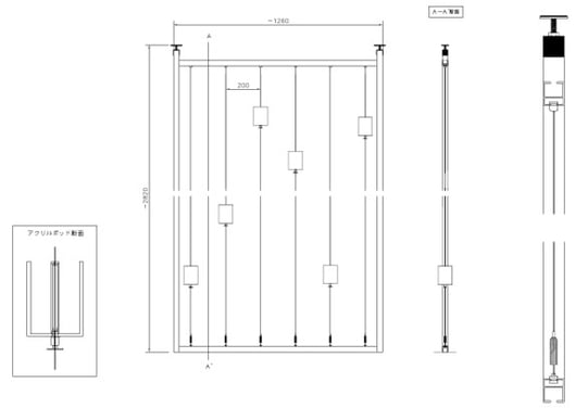
設置方法 【ディスプレイ】ビス止め取付式_アルミ製緑化レール仕様

 

 上端下端:アルミ製緑化レール

 


 

1. レールを取付ける位置を決め、下地の位置を確認し、ビスが効く場所にしっかり止めます。上端、下端同様に取付ける。

※ 取り付ける場所の下地の材質や構造によって、使用するビスの種類が異なりますので、ビスは付属しておりません。 取付カ所の構造に適合する市販品をご用意下さい。 

 

2. ディスプレイワイヤー+アタッチメントを上端の横レールに取り付けておく 

 

3. ディスプレイワイヤーのアタッチメントを下端横レールに取り付けておく 

 

4. ハンギングケースのグリップにワイヤーを差しこむ

 

5. バネ部先端のピンへワイヤーを差し込む

 


 

6. バネフックを下端レールに取り付けてあるアタッチメントに引っかける 

 

7. 先端ピンは押さず、バネ部を上に持ち上げながら、ワイヤーを適度なテンションになるまで引っ張る。

    引っ張った箇所でワイヤーはロックされ、余分なワイヤーはカットするか、レール内に入れる

    ワイヤーの長さ調整はバネ部を上に持ち上げながら、バネ部先端のピンを押す事で調整出来る。

    ワイヤーにテンションがかなりかかっているので、何度も繰り返す。 

 

8. 上方へはそのままハンギングケースを上に押し上げてください。手を離した位置でロックします

 

9. 下方へは、ハンギングケース側面部に取り付けてあるパーツを下に引きながら降ろします。手を放した位置でロックします。

 

10. 植栽などをハンギングケースに入れて、完成   

 


 

 上端:アルミ製緑化レール 下端:インテリア・アンカーレール

 


 

1. レールを取付ける位置を決め、下地の位置を確認し、ビスが効く場所にしっかり止めます。上端、下端同様に取付ける。

※ 取り付ける場所の下地の材質や構造によって、使用するビスの種類が異なりますので、ビスは付属しておりません。 取付カ所の構造に適合する市販品をご用意下さい。 

 

2. ディスプレイワイヤー+アタッチメントを上端の横レールに取り付けておく 

 

3. ディスプレイワイヤーのアタッチメントを下端横レールに取り付けておく 

 

4. ハンギングケースのグリップにワイヤーを差しこむ

 

5. バネ部先端のピンへワイヤーを差し込む

 


 

6. ワイヤーのバネ+アタッチメント側を下端レールの端(穴)から差し込む

 

7. 先端ピンは押さず、バネ部を上に持ち上げながら、ワイヤーを適度なテンションになるまで引っ張る。

    引っ張った箇所でワイヤーはロックされ、余分なワイヤーはカットするか、レール内に入れる

    ワイヤーの長さ調整はバネ部を上に持ち上げながら、バネ部先端のピンを押す事で調整出来る。

    ワイヤーにテンションがかなりかかっているので、何度も繰り返す。 

 

8. 上方へはそのままハンギングケースを上に押し上げてください。手を離した位置でロックします

 

9. 下方へは、ハンギングケース側面部に取り付けてあるパーツを下に引きながら降ろします。手を放した位置でロックします。

 

10. 植栽などをハンギングケースに入れて、完成     

 


設置方法 【ディスプレイ】ビス止め取付式_インテリア・アンカーレール仕様


 

1. レールを取付ける位置を決め、下地の位置を確認し、ビスが効く場所にしっかり止めます。上端、下端同様に取付ける。

※ 取り付ける場所の下地の材質や構造によって、使用するビスの種類が異なりますので、ビスは付属しておりません。 取付カ所の構造に適合する市販品をご用意下さい。 

 

2. ワイヤーアタッチメントを上端レール端のスリットから取り付ける  

 

3. ハンギングケースのグリップにワイヤーを差しこむ 

 

4. バネ部先端のピンへワイヤーを差し込む

 

5. ワイヤーのバネ+アタッチメント側を下端レールの端(穴)から差し込む

 


 

5. ワイヤーのバネ+アタッチメント側を下端レールの端(穴)から差し込む

 

6. 先端ピンは押さず、バネ部を上に持ち上げながら、ワイヤーを適度なテンションになるまで引っ張る。

    引っ張った箇所でワイヤーはロックされ、余分なワイヤーはカットするか、レール内に入れる

    ワイヤーの長さ調整はバネ部を上に持ち上げながら、バネ部先端のピンを押す事で調整出来る。

    ワイヤーにテンションがかなりかかっているので、何度も繰り返す。 

 

7. 上方へはそのままハンギングケースを上に押し上げてください。手を離した位置でロックします

 

8. 下方へは、ハンギングケース側面部に取り付けてあるパーツを下に引きながら降ろします。手を放した位置でロックします

 

9. ワイヤーが外れて落ちない様に、レール端にキャップを取付ける

 


設置方法 【ディスプレイ】ライティングレール取付式


 

1. ハンギングケースのグリップにワイヤーを差しこむ

 

2. バネ部先端のピンへワイヤーを差し込む   

 

3. ライティングレールに既製フックを取付け、ワイヤーを引っ掛けます。※フックの角度によって、取付位置は変わります  

 

4. 上方へはそのままハンギングケースを上に押し上げてください。手を離した位置でロックします

 

5. 下方へは、ハンギングケース側面部に取り付けてあるパーツを下に引きながら降ろします。手を放した位置でロックします

 


 

 ハンガーフック使用手順

 

  • ワイヤーにハンガーフックを取り付ける事で、既製ハンギングアイテムを吊るす事が出来ます
  • ハンガーフックを押す事で下に移動出来、上に移動させていた時は、そのままハンガーフックをを上に押し上げれば移動出来ます


  • 上方には、そのままハンガーフック上に押し上げて下さい。手を離した位置でロックします。
  • 下方へは、ハンガーフック上部のパーツを押しながら降ろします。手を離した位置でロックします。

 

 ご注意

 

※ ご使用時の注意事項

 

  • レール1枠にかかる耐荷重は20kgまでとして下さい。重さにより横レールが歪み、倒れる可能性がございます。これは実験値であり、設置場所等によって条件が変わる為、保証するものではありません。
  • アルティマ グリューネ・フェンスター【ディスプレイ】は屋内用です。
  • アジャスターはレールに装着する事でビス、ネジ、釘を使わずレールを床と天井に突っ張る事を目的にした商品です。
  • 下地のしっかりした場所に設置してください。下地の弱いところに設置すると転倒の原因となったり、天井を破損する恐れがあります。
  • 傾斜した下地、床面には設置しないでください。転倒の原因となります。
  • 床と垂直に設置してください。斜めに設置すると転倒の原因となります。
  • 適用レール高さ+アジャスターは一般家庭の天井の高さを想定した商品です。
  • レール+アジャスターは縦突っ張り専用です。横向きには使用しないでください。

 

 

※ ハンギングアイテムの取付に関して

 

  • ワイヤーを下端レールに取り付けた後、余分なワイヤーはレールのスリットに入れてください。ワイヤーをカットし過ぎてしまうと、ハンギングアイテムを再度取付ける際、引っ張りしろが少なく、ワイヤーに適度なテンションをかけるのが難しくなる為、あまりカットをしない事をお勧めします。
  • ハンギングアイテム取り外しの際、バネ部を上に持ち上げながら、先端ピンを押してください。バネ部を持ち上げずにワイヤーを抜こうとすると、ワイヤーが痛む可能性があります。
  • ハンギングポットの荷重値は2kgまで、ハンギングケースの荷重値は4kgまでとなっております。