アルティマ オンラインショップ
ワイヤー式振れ止め アルティマ ワイヤーロック (振れ止めワイヤーシステム)
| 
                 
 主な使用用途 
  | 
        
| ワイヤー線径 | φ1.5、φ3.0 SUSワイヤー | 
| 許容荷重 | 
                 55kg 以内~170kg 以内 ※ワイヤーの線径により、許容荷重値は異なります ※許容荷重値は、最大静荷重値の約1/3の安全率でみています  | 
        
| 主な用途例 | 設備の固定、振れ止めなど | 
| 主な納入先 | 各電設資材企業、各照明設備企業 その他多数 | 
| 
                 
 ① 許容荷重:170kg以内(φ3.0)を使用したい 
  | 
        |||||
| ↓ はい | ↓ いいえ | ||||
| 
                 
 ② 許容荷重:55kg以内(φ1.5)を使用したい 
  | 
        |||||
| ↓ はい | |||||
| 
                 
 ② グリップ単品(φ3.0)を使用したい 
  | 
            ③ グリップ単品(φ1.5)を使用したい | ||||
| ↓ はい | ↓ いいえ | ↓ はい | ↓ いいえ | ||
| 
                 
 ③ グリップ+ワイヤー(φ3.0)を使用したい 
  | 
            ④ グリップ+ワイヤー(φ1.5)を使用したい | ||||
| ↓ はい | ↓ はい | ||||
| 
                 
 
  | 
            詳細はこちら | 詳細はこちら | 詳細はこちら | 詳細はこちら | 詳細はこちら | 
| 
                 単品_φ3.0 ULG-3012  | 
            
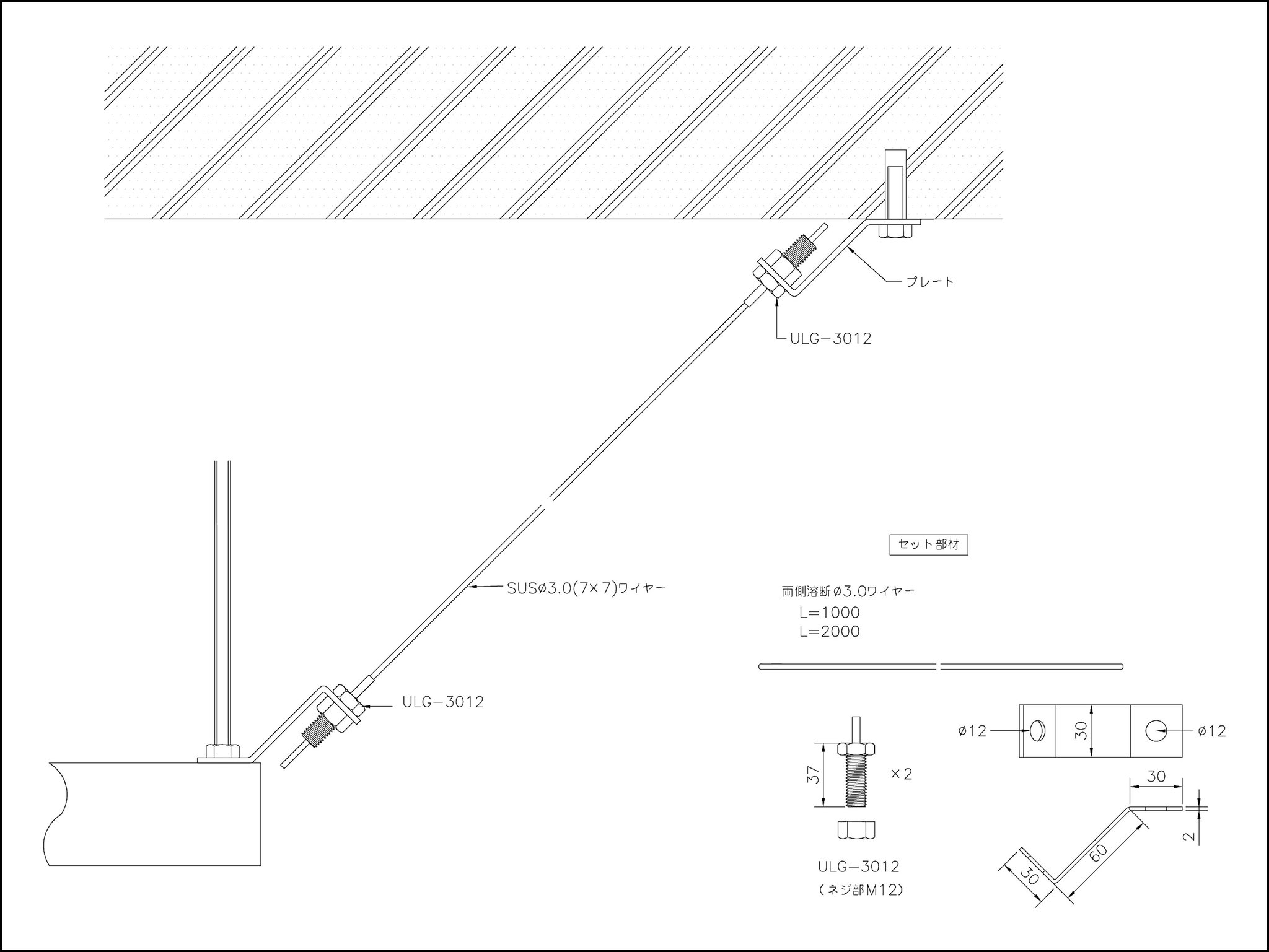
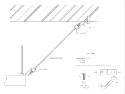
                 φ3.0 ULG-3012+ ワイヤー(両側溶断)  | 
            
                 φ3.0 ULG-3012+ ワイヤー(片側端子)  | 
            
                 単品_φ1.5 ULG-1509  | 
            
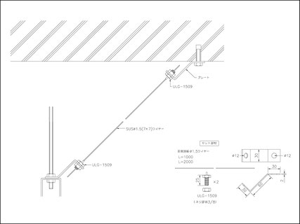
                 φ1.5 ULG-1509+ ワイヤー(両側溶断)  | 
            
                 φ1.5 ULG-1509+ ワイヤー(片側端子)  | 
        
| 
                 単品販売  | 
            
                
  | 
            
                
  | 
            
                 単品販売  | 
            
                
  | 
            
                
  | 
        
| 
                 ① つる植物登はん用 緑化ワイヤー【被膜φ6 スパイラルワイヤー】  | 
        
| 
                 
 【単品】グリップ 
  | 
        
※ 表示価格は税別になります。
| 
                 
 ULG-1509 (グリップ) 
  | 
        
                
  | 
        
| 1,000円 (税別) | 
| 
                 
 
  | 
        
| 
                 ① つる植物登はん用 緑化ワイヤー【被膜φ6 スパイラルワイヤー】  | 
        
| 
                 
 グリップ+ワイヤー(φ3.0) 
  | 
        
※ ULG-3012(グリップ)、ULG-3012 A(端部)はナット込みとなっております
※ 両側溶断ワイヤーは、L=10,000mm、L=1,000mm、L=2,000mmから選択可能です。片側端子ワイヤーは、L=1,000mm、L=2,000mmから選択可能です。
※ 表示価格は税別になります
| 
                 
 φ3.0 ULG-3012 + ワイヤー(両側溶断) 
  | 
        
                
  | 
        
| 3,500円 (税別) ~ | 
| 
                 
 
  | 
        
| 
                 
 φ3.0 ULG-3012 (A) + ワイヤー(片側端子) 
  | 
        
                
  | 
        
| 3,800円 (税別) ~ | 
| 
                 
 
  | 
        
| 
                 ① つる植物登はん用 緑化ワイヤー【被膜φ6 スパイラルワイヤー】  | 
        
| 
                 
 グリップ+ワイヤー(φ1.5) 
  | 
        
※ ULG-1509(グリップ)、ULG-1509 A(端部)はナット込みとなっております
※ 両側溶断ワイヤーは、L=10,000mm、L=1,000mm、L=2,000mmから選択可能です。片側端子ワイヤーは、L=1,000mm、L=2,000mmから選択可能です。
※ 表示価格は税別になります
| 
                 
 φ1.5 ULG-1509 + ワイヤー(両側溶断) 
  | 
        
                
  | 
        
| 2,300円 (税別)~ | 
| 
                 
 
  | 
        
| 
                 
 φ1.5 ULG-1509 + ワイヤー(片側端子) 
  | 
        
                
  | 
        
| 2,400円 (税別) ~ | 
| 
                 
 
  |